1, three eccentric metal sealing butterfly valve to change the sealing structure of the traditional metal seal valve. The traditional butterfly valve, gate valve sealing in the valve opening and closing when disengaged angle is small, the sealing surface friction serious, open, Guan Liju; the three eccentric metal sealing butterfly valve in the opening and closing when the sealing surface 360 degrees on the circumference of the friction angle is greater than disengaged from the material of the sealing surface of the sealing surface angle, to prevent scratches, stuck or temperature changes appear blocking surface caused by thermal expansion and contraction.
2, three eccentric metal sealing butterfly valve to ensure the sealing surface of the valve is closed when opening the disengaged angle into the sealing surface pressure angle, so as to ensure the sealing surface of the sealing pressure, sealing surface deformation can be obtained without generating zero leakage sealing.
3, three eccentric metal sealing butterfly valve sealing surface friction due to disengaged angle is greater than the angle of the materials, the valve opening and closing when almost no friction, ensure the valve sealing surface abrasion, improves the service life. Valve service life of up to 200 thousand times.
4, three eccentric metal sealing butterfly valve seal friction small, switching torque is small, easy valve switch.
5, three eccentric metal sealing butterfly valve seal with the floating seal form, the valve in the installation or change of temperature in the process of using, micro deformation of floating sealing ring can compensate the valve body, valve seal always in the best state.
6, the scope of application:
![]()
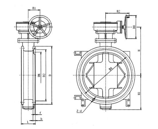
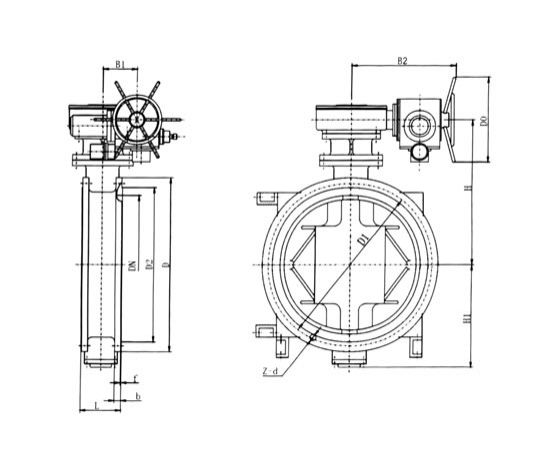
Main dimensions, dimensions and dimensions
![]()
![]()
